产品概述
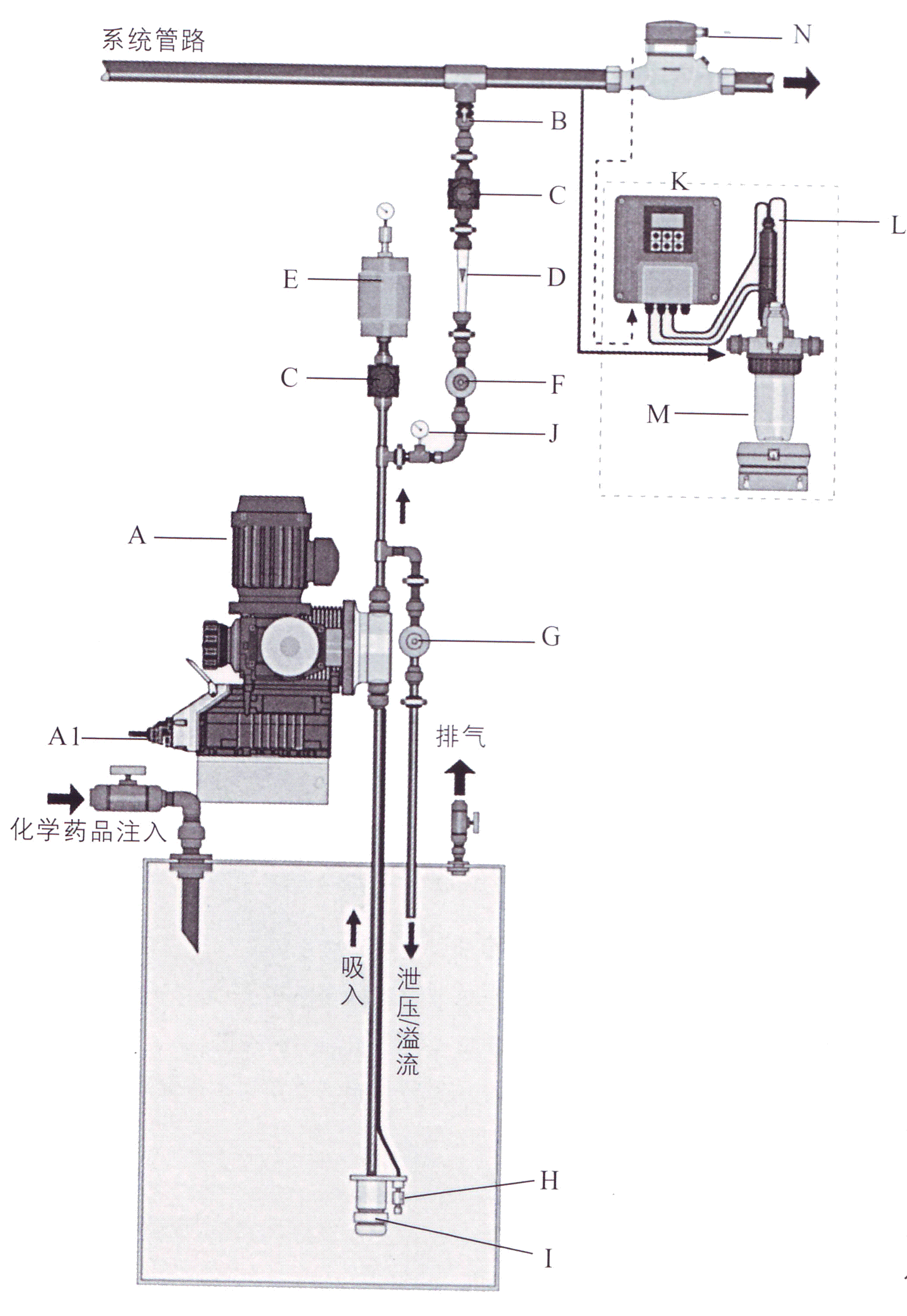
S X系列成套加药装置是一种全新概念的化学水处理加药设备,已在国内外的电力、公共、市政等水处理领域广泛应用。它是将在线传感器、智能控制仪表、精密计量泵、背压阀、安全阀、脉冲阻尼器、专用化学品容器及相关附件安装在同一个底座平台上,实现溶配药液、计量投加功能单元的整体组合,具有结构紧凑、占地面积小和易于运输安装等特点。双新环保凭借多年致力于水处理积累的技术和经验,根据不同水质的处理要求及加药特点,借鉴和吸收国内外先进的加药技术、以高标准提供水处理系统解决方案为产品设计思路,研发推出具有先进可靠、配置灵活、满足用户任意选择的全新组合式加药装置。产品特点
1. 以系统设计为主体,克服了以单一设备或部件为设计主体的传统产品存在的系统性差的缺陷;2. 吸取国内外加药技术精华,以全新的设计理念,使工艺更优化;
3. 产品结构模块化设计,一体化组合,可方便地进行能力和功能扩展;
4. 可根据不同的水质和用户的不同要求,灵活的配置最佳方案;
5. 国内外多种著名品牌、不同材质、各种档次的设备及部件,用户可任意选配;
6. 任选择手动、自动等多种控制方式,实现不同控制要求。
图片展示




